中古一戸建て

練馬区東大泉7丁目 6980万円 戸建6,580万円

◆令和6年7月完成の未入居住宅
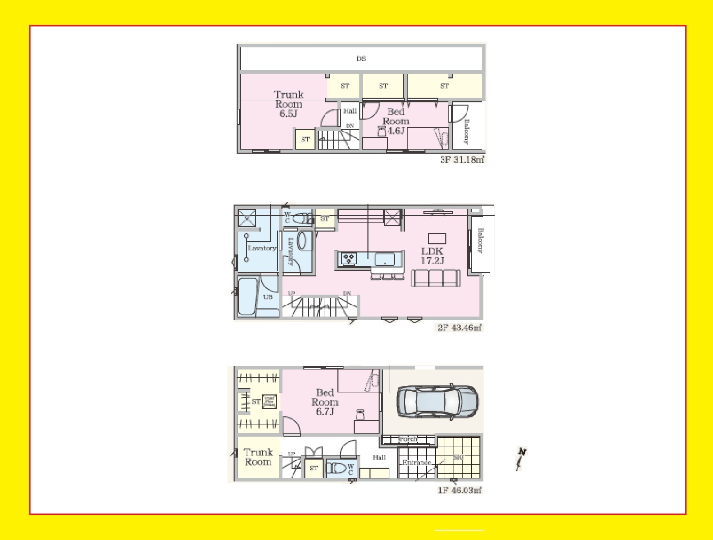
◆収納充実の3LDK
◆アイランドキッチン
◆車庫1台分あり
◆小中学校・スーパー徒歩10分圏内
令和6年7月築の未入居物件

令和6年7月築の未入居物件

収納充実しています

収納充実しています

  • 広々とした浴槽で、一日の疲れを癒すのに最適なバスルームです。
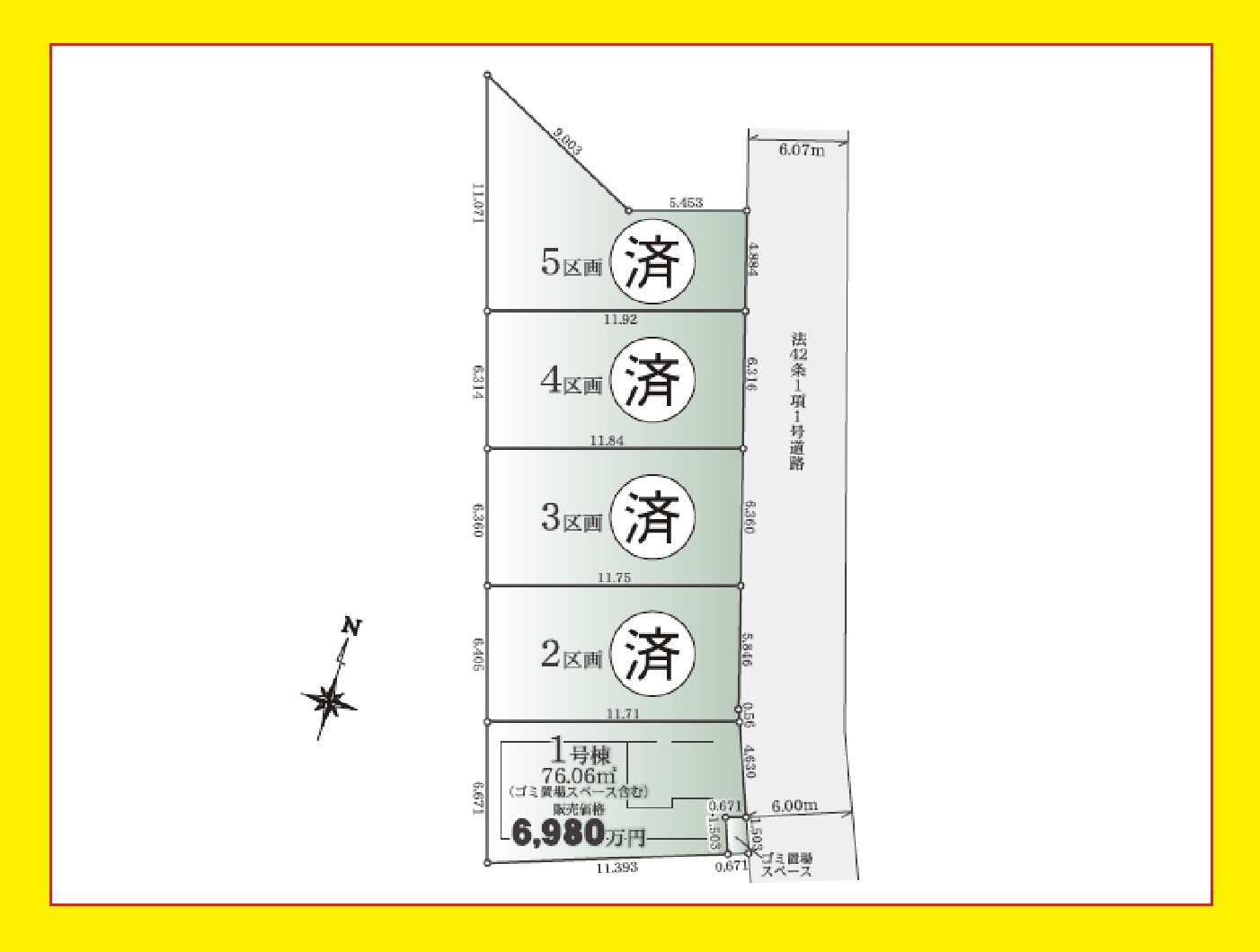
  • 最終1棟!整形地です。

※画像はクリックすると拡大します。

令和6年7月築の未入居物件

令和6年7月築の未入居物件

収納充実しています

収納充実しています

広々とした浴槽で、一日の疲れを癒すのに最適なバスルームです。

広々とした浴槽で、一日の疲れを癒すのに最適なバスルームです。

最終1棟!整形地です。

最終1棟!整形地です。

令和6年7月築の未入居物件
収納充実しています
広々とした浴槽で、一日の疲れを癒すのに最適なバスルームです。
最終1棟!整形地です。

物件概要

物件名称
練馬区東大泉7丁目 6980万円 戸建
販売価格
6,580万円  
毎月の返済額 万円台
返済シミュレーション
所在地
東京都練馬区東大泉7丁目
交通
西武池袋線「大泉学園」駅徒歩16分
間取り
3LDK
土地面積
76.06m²(実測)
建物面積
120.67m²(実測)
構造
木造
セットバック
不要
階建
地上3階
私道面積
築年月
2024年07月
引渡し
相談
建ぺい率/容積率
-/-
接道
-
土地権利関連
土地権利:所有権
地目
宅地
用途地域
第一種中高層住居専用地域
現況
空家
取引態様
仲介
物件番号
100136478073
情報更新日
2026-04-09
次回更新予定日
随時
設備
-
備考
◆令和6年7月完成の未入居住宅
◆収納充実の3LDK
◆アイランドキッチン
◆車庫1台分あり
◆小中学校・スーパー徒歩10分圏内
取引条件有効期限:2026-05-31

こちらの物件のローンシミュレーション

物件価格
6,580万円
借入予定額
万円
頭金予定額
万円
ボーナス払い
返済年数
金利

金利を直接入力

%

※ 金利参考先:各都市銀行・地方銀行・ネット銀行・住宅金融支援機構 等

毎月のお支払い額
ボーナス月のお支払額
🏡住宅ローンの無料相談受付中!🏡
住宅ローンの無料相談

「物件がまだ決まっていないけれど、住宅ローンについて詳しく知りたい…」
そんな方も大歓迎です!

💡専門のファイナンシャルプランナー・住宅ローンアドバイザーがサポート!
  • 🔹あなたに最適な金融機関をご提案
  • 🔹銀行に直接申し込むよりも、住宅ローンの審査が通りやすく!
  • 🔹分かりやすいシミュレーションをFPが無料でコンサルティング!
  • 🔹事前審査(仮審査)から正式審査(本申込)までトータルサポート!
専門のファイナンシャルプランナー・住宅ローンアドバイザーがサポート

住宅購入を検討中の方も、ローンの基礎知識を知りたい方も、まずはお気軽にご相談ください

専門のファイナンシャルプランナー・住宅ローンアドバイザーがサポート
お電話でのお問い合わせはこちら

WALLMATE不動産 本店

東京メトロ銀座線「溜池山王」駅9番出口から徒歩1分

本店
メールでのお問い合わせはこちら

条件に近い物件

見学予約 資料請求
ページトップへ
無料会員登録で会員限定未公開物件が閲覧できます
3,202
5,886
閉じる