マンション

プレサンス本駒込アカデミア9,990万円

◆東京メトロ南北線「本駒込」駅徒歩1分
◆全居室収納有り
◆対面キッチンで安心
◆2面採光で明るい
東京メトロ南北線「本駒込」駅徒歩1分

東京メトロ南北線「本駒込」駅徒歩1分

全居室収納有り

全居室収納有り

  • 対面キッチンで安心
  • 2面採光で明るい

※画像はクリックすると拡大します。

東京メトロ南北線「本駒込」駅徒歩1分

東京メトロ南北線「本駒込」駅徒歩1分

全居室収納有り

全居室収納有り

対面キッチンで安心

対面キッチンで安心

2面採光で明るい

2面採光で明るい

東京メトロ南北線「本駒込」駅徒歩1分
全居室収納有り
対面キッチンで安心
2面採光で明るい

物件概要

物件名称
プレサンス本駒込アカデミア
販売価格
9,990万円  
毎月の返済額 万円台
返済シミュレーション
所在地
東京都文京区本駒込1丁目
交通
東京メトロ南北線「本駒込」駅徒歩1分
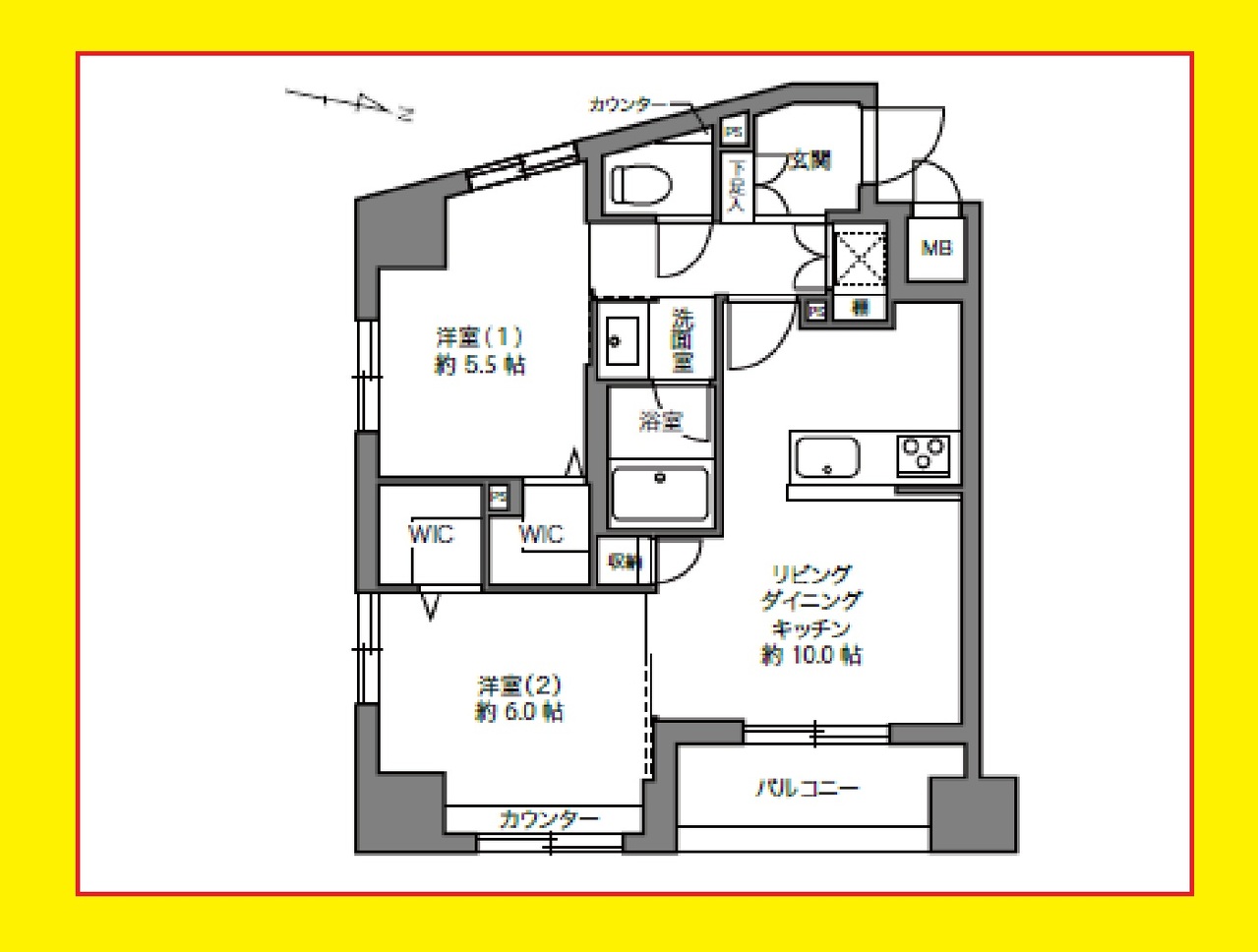
間取り
2LDK
専有面積
51.15m²(登記)
バルコニー面積/向き
-
構造
RC
総戸数
-
土地権利関連
土地権利:所有権
築年月
2008年03月
管理形態
全部委託/通勤方式
所在階
4階/地上15階
駐車場
-
駐車場料金(月額)
-
管理費(月額)
12,020円
修繕積立金(月額)
7,160円
現況
空家
引渡し時期
相談
取引態様
仲介
物件番号
100138345809
情報更新日
2026-04-08
次回更新予定日
随時
設備
-
備考
◆東京メトロ南北線「本駒込」駅徒歩1分
◆全居室収納有り
◆対面キッチンで安心
◆2面採光で明るい
取引条件有効期限:2026-05-31

こちらの物件のローンシミュレーション

物件価格
9,990万円
借入予定額
万円
頭金予定額
万円
ボーナス払い
返済年数
金利

金利を直接入力

%

※ 金利参考先:各都市銀行・地方銀行・ネット銀行・住宅金融支援機構 等

毎月のお支払い額
ボーナス月のお支払額
🏡住宅ローンの無料相談受付中!🏡
住宅ローンの無料相談

「物件がまだ決まっていないけれど、住宅ローンについて詳しく知りたい…」
そんな方も大歓迎です!

💡専門のファイナンシャルプランナー・住宅ローンアドバイザーがサポート!
  • 🔹あなたに最適な金融機関をご提案
  • 🔹銀行に直接申し込むよりも、住宅ローンの審査が通りやすく!
  • 🔹分かりやすいシミュレーションをFPが無料でコンサルティング!
  • 🔹事前審査(仮審査)から正式審査(本申込)までトータルサポート!
専門のファイナンシャルプランナー・住宅ローンアドバイザーがサポート

住宅購入を検討中の方も、ローンの基礎知識を知りたい方も、まずはお気軽にご相談ください

専門のファイナンシャルプランナー・住宅ローンアドバイザーがサポート
お電話でのお問い合わせはこちら

WALLMATE不動産 本店

東京メトロ銀座線「溜池山王」駅9番出口から徒歩1分

本店
メールでのお問い合わせはこちら

条件に近い物件

見学予約 資料請求
ページトップへ
無料会員登録で会員限定未公開物件が閲覧できます
3,202
5,886
閉じる