土地

新宿区北新宿215,380万円

◆駅近好立地
◆複数路線利用可能
◆更地渡し
◆建築条件無し
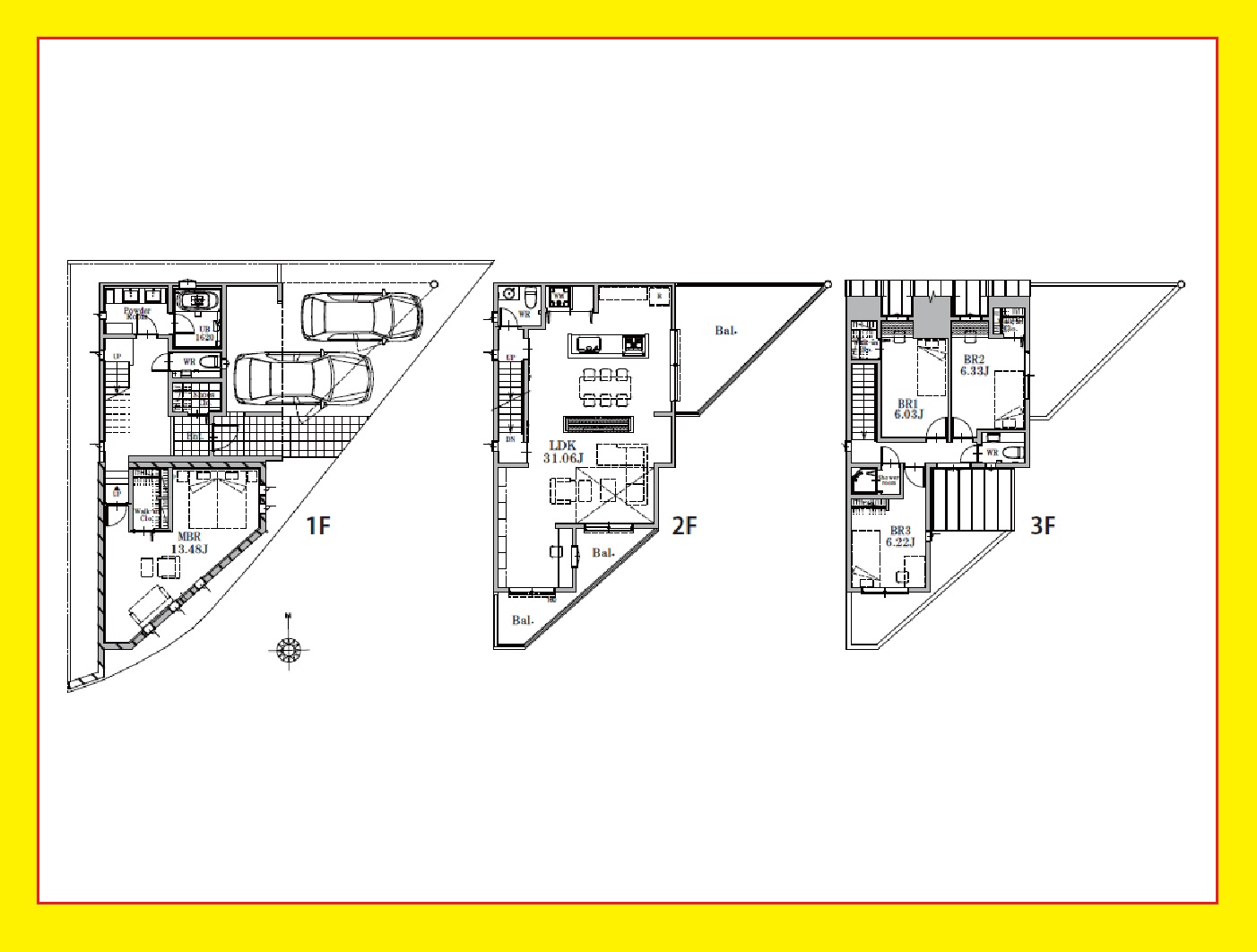
◆建物参考プラン有
陽当たり良好

陽当たり良好

更地渡し

更地渡し

  • 建物参考プラン有
  • 複数路線利用可能

※画像はクリックすると拡大します。

陽当たり良好

陽当たり良好

更地渡し

更地渡し

建物参考プラン有

建物参考プラン有

複数路線利用可能

複数路線利用可能

陽当たり良好
更地渡し
建物参考プラン有
複数路線利用可能

物件概要

物件名称
新宿区北新宿2
販売価格
15,380万円  
毎月の返済額 万円台
返済シミュレーション
所在地
東京都新宿区北新宿2丁目
交通
総武・中央緩行線「大久保」駅徒歩9分
土地面積
130.35m²(実測)
建ぺい率/容積率
60%/300%
用途地域
第一種中高層住居専用地域
主な使用用途
販売区画数
-
地勢
-
建築条件
建築条件無
地目
宅地
土地権利関連
土地権利:所有権
引渡し
相談
セットバック
不要
接道
-
現況
更地
都市計画
市街
私道面積
取引態様
仲介
物件番号
507
情報更新日
2026-04-15
次回更新予定日
随時
設備
-
備考
◆駅近好立地
◆複数路線利用可能
◆更地渡し
◆建築条件無し
◆建物参考プラン有
取引条件有効期限:2026-05-31

こちらの物件のローンシミュレーション

物件価格
15,380万円
借入予定額
万円
頭金予定額
万円
ボーナス払い
返済年数
金利

金利を直接入力

%

※ 金利参考先:各都市銀行・地方銀行・ネット銀行・住宅金融支援機構 等

毎月のお支払い額
ボーナス月のお支払額
🏡住宅ローンの無料相談受付中!🏡
住宅ローンの無料相談

「物件がまだ決まっていないけれど、住宅ローンについて詳しく知りたい…」
そんな方も大歓迎です!

💡専門のファイナンシャルプランナー・住宅ローンアドバイザーがサポート!
  • 🔹あなたに最適な金融機関をご提案
  • 🔹銀行に直接申し込むよりも、住宅ローンの審査が通りやすく!
  • 🔹分かりやすいシミュレーションをFPが無料でコンサルティング!
  • 🔹事前審査(仮審査)から正式審査(本申込)までトータルサポート!
専門のファイナンシャルプランナー・住宅ローンアドバイザーがサポート

住宅購入を検討中の方も、ローンの基礎知識を知りたい方も、まずはお気軽にご相談ください

専門のファイナンシャルプランナー・住宅ローンアドバイザーがサポート
お電話でのお問い合わせはこちら

WALLMATE不動産 後楽園支店

都営三田線「水道橋」駅徒歩3分

後楽園支店
メールでのお問い合わせはこちら

条件に近い物件

見学予約 資料請求
ページトップへ
無料会員登録で会員限定未公開物件が閲覧できます
2,014
7,832
閉じる