マンション

シャンボール洗足池6,980万円

◆フルリノベーション済
◆即見学可
◆管理体制良好
◆耐震補強工事実施済
◆陽当たり・眺望良好
◆嬉しいペット飼育可
フルリノベーション済

フルリノベーション済

陽当たり・眺望良好

陽当たり・眺望良好

  • 耐震補強工事実施済

※画像はクリックすると拡大します。

フルリノベーション済

フルリノベーション済

陽当たり・眺望良好

陽当たり・眺望良好

耐震補強工事実施済

耐震補強工事実施済

フルリノベーション済
陽当たり・眺望良好
耐震補強工事実施済

物件概要

物件名称
シャンボール洗足池
販売価格
6,980万円  
毎月の返済額 万円台
返済シミュレーション
所在地
東京都大田区東雪谷1丁目
交通
東急池上線「洗足池」駅徒歩1分
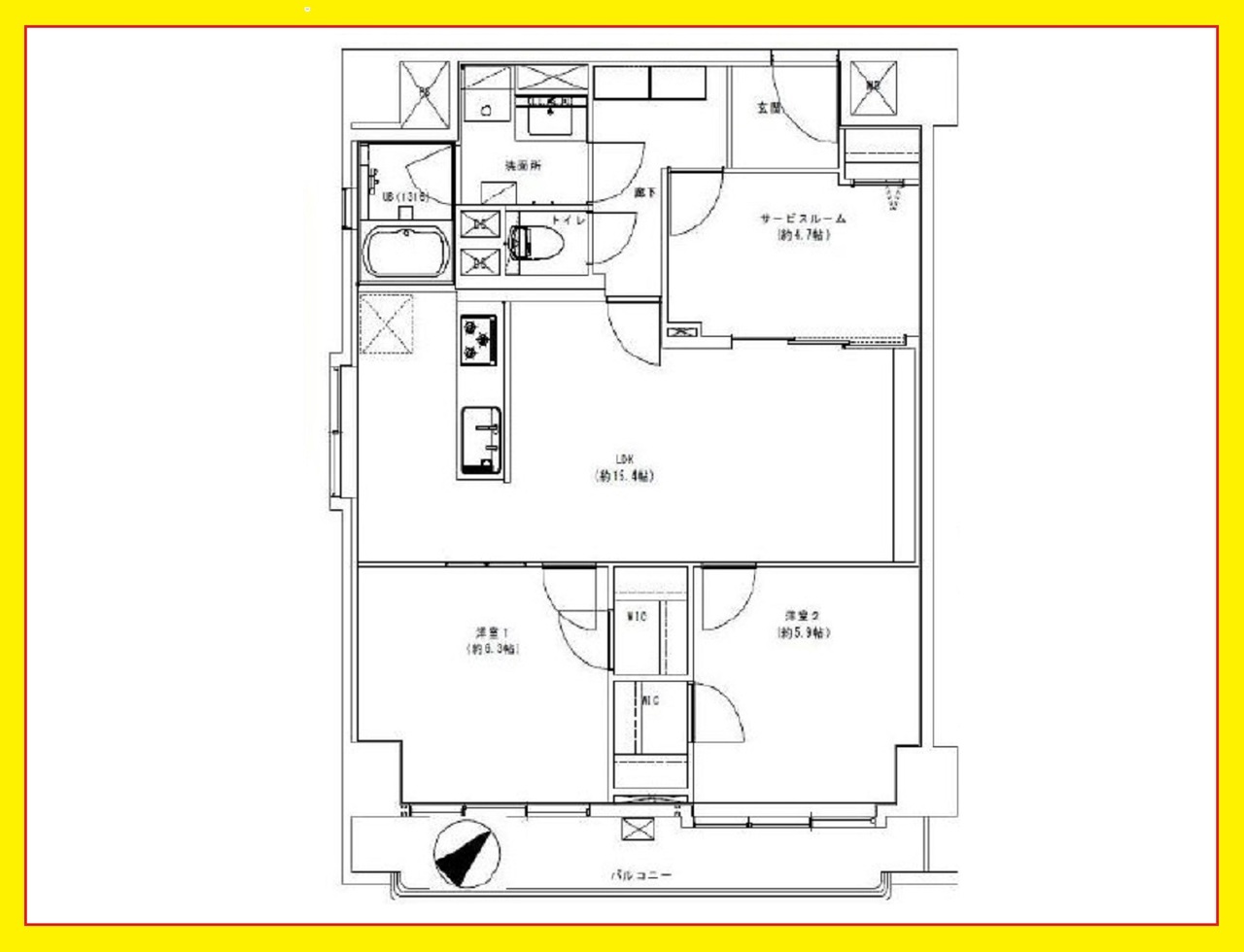
間取り
3LDK
専有面積
68.19m²(壁芯)
バルコニー面積/向き
-
構造
SRC
総戸数
-
土地権利関連
土地権利:所有権
築年月
1975年02月
管理形態
全部委託/通勤方式
所在階
3階/地上8階
駐車場
-
駐車場料金(月額)
-
管理費(月額)
18,200円
修繕積立金(月額)
11,200円
現況
空家
引渡し時期
相談
取引態様
仲介
物件番号
100138342009
情報更新日
2026-04-27
次回更新予定日
随時
設備
-
備考
◆フルリノベーション済
◆即見学可
◆管理体制良好
◆耐震補強工事実施済
◆陽当たり・眺望良好
◆嬉しいペット飼育可
取引条件有効期限:2026-05-31

こちらの物件のローンシミュレーション

物件価格
6,980万円
借入予定額
万円
頭金予定額
万円
ボーナス払い
返済年数
金利

金利を直接入力

%

※ 金利参考先:各都市銀行・地方銀行・ネット銀行・住宅金融支援機構 等

毎月のお支払い額
ボーナス月のお支払額
🏡住宅ローンの無料相談受付中!🏡
住宅ローンの無料相談

「物件がまだ決まっていないけれど、住宅ローンについて詳しく知りたい…」
そんな方も大歓迎です!

💡専門のファイナンシャルプランナー・住宅ローンアドバイザーがサポート!
  • 🔹あなたに最適な金融機関をご提案
  • 🔹銀行に直接申し込むよりも、住宅ローンの審査が通りやすく!
  • 🔹分かりやすいシミュレーションをFPが無料でコンサルティング!
  • 🔹事前審査(仮審査)から正式審査(本申込)までトータルサポート!
専門のファイナンシャルプランナー・住宅ローンアドバイザーがサポート

住宅購入を検討中の方も、ローンの基礎知識を知りたい方も、まずはお気軽にご相談ください

専門のファイナンシャルプランナー・住宅ローンアドバイザーがサポート
お電話でのお問い合わせはこちら

WALLMATE不動産 洗足池支店

東急池上線「長原」駅徒歩2分

洗足池支店
メールでのお問い合わせはこちら

条件に近い物件

見学予約 資料請求
ページトップへ
無料会員登録で会員限定未公開物件が閲覧できます
3,202
5,886
閉じる