新築一戸建て

杉並区善福寺49,480万円

◆閑静な住宅街
◆完成済み
◆即見学可
◆大型駐車可
◆嬉しい家具付き物件♪
嬉しい家具付き物件♪

嬉しい家具付き物件♪

完成につき即見学可

完成につき即見学可

  • 大型駐車可

※画像はクリックすると拡大します。

嬉しい家具付き物件♪

嬉しい家具付き物件♪

完成につき即見学可

完成につき即見学可

大型駐車可

大型駐車可

嬉しい家具付き物件♪
完成につき即見学可
大型駐車可

物件概要

物件名称
杉並区善福寺4
販売価格
9,480万円  
毎月の返済額 万円台
返済シミュレーション
所在地
東京都杉並区善福寺4丁目
交通
西武新宿線「上石神井」駅徒歩17分
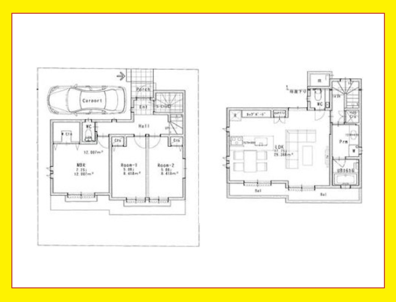
間取り
3LDK
土地面積
109.76m²(実測)
建物面積
87.6m²(実測)
構造
木造
セットバック
不要
階建
地上2階
私道面積
築年月
2026年03月
引渡し
相談
建ぺい率/容積率
-/-
接道
一方 西側幅4.5m
土地権利関連
土地権利:所有権
地目
宅地
用途地域
第一種低層住居専用地域
現況
完成済
取引態様
仲介
物件番号
100138467327
情報更新日
2026-04-15
次回更新予定日
随時
設備
-
備考
◆閑静な住宅街
◆完成済み
◆即見学可
◆大型駐車可
◆嬉しい家具付き物件♪
取引条件有効期限:2026-05-31

こちらの物件のローンシミュレーション

物件価格
9,480万円
借入予定額
万円
頭金予定額
万円
ボーナス払い
返済年数
金利

金利を直接入力

%

※ 金利参考先:各都市銀行・地方銀行・ネット銀行・住宅金融支援機構 等

毎月のお支払い額
ボーナス月のお支払額
🏡住宅ローンの無料相談受付中!🏡
住宅ローンの無料相談

「物件がまだ決まっていないけれど、住宅ローンについて詳しく知りたい…」
そんな方も大歓迎です!

💡専門のファイナンシャルプランナー・住宅ローンアドバイザーがサポート!
  • 🔹あなたに最適な金融機関をご提案
  • 🔹銀行に直接申し込むよりも、住宅ローンの審査が通りやすく!
  • 🔹分かりやすいシミュレーションをFPが無料でコンサルティング!
  • 🔹事前審査(仮審査)から正式審査(本申込)までトータルサポート!
専門のファイナンシャルプランナー・住宅ローンアドバイザーがサポート

住宅購入を検討中の方も、ローンの基礎知識を知りたい方も、まずはお気軽にご相談ください

専門のファイナンシャルプランナー・住宅ローンアドバイザーがサポート
お電話でのお問い合わせはこちら

WALLMATE不動産 浜田山支店

京王井の頭線「浜田山」駅徒歩2分

浜田山支店
メールでのお問い合わせはこちら

条件に近い物件

見学予約 資料請求
ページトップへ
無料会員登録で会員限定未公開物件が閲覧できます
3,202
5,886
閉じる